Höhenverstellbare Zugangsbeschränkungsbarriere - Premium - Schwenkmodell (2-4,5 m Breite)
- SKU 417_201VBP
Zuverlässige Verkehrssteuerung für höhenbeschränkte Bereiche
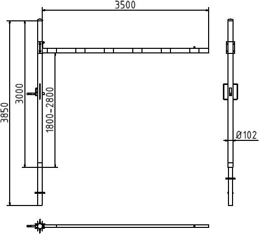
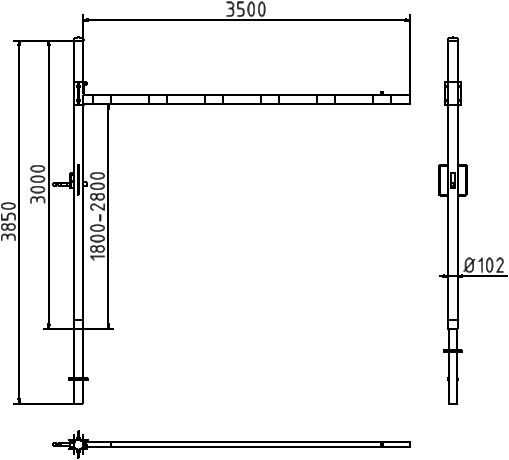
Die Höhenbegrenzungsbarriere – Modell 2 ist eine langlebige und anpassungsfähige Lösung zur Zugangskontrolle in Bereichen mit Höhenbeschränkungen, wie Parkplätzen, Industrieanlagen und Privatstraßen. Entwickelt für das Einbetonieren, gewährleistet diese Barriere langfristige Stabilität und Sicherheit und bietet einstellbare Durchfahrtshöhen sowie mehrere Verriegelungsoptionen für maximale Flexibilität.
Hauptmerkmale & Vorteile
✅ Verstellbare vertikale Durchfahrtshöhe:
- Die Höhenfreigabe kann zwischen 1800 mm – 2800 mm eingestellt werden, was eine präzise Kontrolle über den eingeschränkten Zugang ermöglicht.
✅ Starke & Langlebige Konstruktion:
- Drehbarer Stahlpfosten Ø 102 mm, feuerverzinkt und weiß beschichtet für maximale Haltbarkeit.
- Querträger: Aluminium (100 x 50 mm), weiß beschichtet mit roten reflektierenden Streifen für hohe Sichtbarkeit bei allen Lichtverhältnissen.
✅ Schwenk- & Sicheres Verriegelungssystem:
- Die horizontale Querstange schwenkt und ist mit einem Kabelzugsystem für einfache Bedienung ausgestattet.
-
Sicherer Verriegelungsmechanismus: Wählen Sie aus:
- Für Vorhängeschloss (vom Benutzer bereitgestellt)
- Mit dreieckigem Verriegelungsmechanismus
- Mit Euro-Profilzylinderschloss
✅ Mehrere Querrohrlängenoptionen:
- Verfügbar in sechs verschiedenen Breiten, um Ihren Platzanforderungen gerecht zu werden:
- 2000 mm
- 2500 mm
- 3000 mm
- 3500 mm
- 4000 mm
- 4500 mm
✅ Flexible Montagemöglichkeiten:
- Mit Stopfen befestigt für eine einfachere Installation auf bestehenden Fundamenten.
- Zum Gießen in Beton für eine dauerhafte und stabile Einrichtung.
Warum diese Höhenbegrenzungsbarriere wählen?
🔹 Hoch sichtbar & sicher – Die roten reflektierenden Streifen sorgen für maximale Sichtbarkeit und verringern das Risiko von versehentlichen Kollisionen.
🔹 Wetterbeständig & Langlebig – Feuerverzinkter Stahl und Aluminiumkonstruktion verhindern Rost und Korrosion.
🔹 Anpassbar & Vielseitig – Wählen Sie die richtige Breite, Höhenverstellung und Verriegelungssystem, um Ihre spezifischen Bedürfnisse zu erfüllen.
🔹 Einfach zu bedienen – Die schwenkbare Querstange mit einem Kabelzugmechanismus sorgt für eine bequeme Nutzung.
Ideal für die Verwendung in:
✔️ Parkhäuser
✔️ Private Straßen & Einfahrten
✔️ Lagerhäuser & Laderampen
✔️ Industriegebiete
✔️ Bereiche mit eingeschränktem Zugang
Varianten
| Variante - Querrohrlänge / Montage / Locking System | Anzahl | Preis | Summe |
|---|---|---|---|
2000 mm / Mit Stopfen befestigt / Für Vorhängeschloss
417_201VBP
|
|
||
2000 mm / Mit Stopfen befestigt / Dreieckiger Verriegelungsmechanismus
417_201FBP
|
|
||
2000 mm / Mit Stopfen befestigt / Europrofil-Zylinderschloss
417_201ZBP
|
|
||
2000 mm / Wurzelfest / Für Vorhängeschloss
417_201VB
|
|
||
2000 mm / Wurzelfest / Dreieckiger Verriegelungsmechanismus
417_201FB
|
|
||
2000 mm / Wurzelfest / Europrofil-Zylinderschloss
417_201ZB
|
|
||
2500 mm / Mit Stopfen befestigt / Für Vorhängeschloss
417_251VBP
|
|
||
2500 mm / Mit Stopfen befestigt / Dreieckiger Verriegelungsmechanismus
417_251FBP
|
|
||
2500 mm / Mit Stopfen befestigt / Europrofil-Zylinderschloss
417_251ZBP
|
|
||
2500 mm / Wurzelfest / Für Vorhängeschloss
417_251VB
|
|
||
2500 mm / Wurzelfest / Dreieckiger Verriegelungsmechanismus
417_251FB
|
|
||
2500 mm / Wurzelfest / Europrofil-Zylinderschloss
417_251ZB
|
|
||
3000 mm / Mit Stopfen befestigt / Für Vorhängeschloss
417_301VBP
|
|
||
3000 mm / Mit Stopfen befestigt / Dreieckiger Verriegelungsmechanismus
417_301FBP
|
|
||
3000 mm / Mit Stopfen befestigt / Europrofil-Zylinderschloss
417_301ZBP
|
|
||
3000 mm / Wurzelfest / Für Vorhängeschloss
417_301VB
|
|
||
3000 mm / Wurzelfest / Dreieckiger Verriegelungsmechanismus
417_301FB
|
|
||
3000 mm / Wurzelfest / Europrofil-Zylinderschloss
417_301ZB
|
|
||
3500 mm / Mit Stopfen befestigt / Für Vorhängeschloss
417_351VBP
|
|
||
3500 mm / Mit Stopfen befestigt / Dreieckiger Verriegelungsmechanismus
417_351FBP
|
|
||
3500 mm / Mit Stopfen befestigt / Europrofil-Zylinderschloss
417_351ZBP
|
|
||
3500 mm / Wurzelfest / Für Vorhängeschloss
417_351VB
|
|
||
3500 mm / Wurzelfest / Dreieckiger Verriegelungsmechanismus
417_351FB
|
|
||
3500 mm / Wurzelfest / Europrofil-Zylinderschloss
417_351ZB
|
|
||
4000 mm / Mit Stopfen befestigt / Für Vorhängeschloss
417_401VBP
|
|
||
4000 mm / Mit Stopfen befestigt / Dreieckiger Verriegelungsmechanismus
417_401FBP
|
|
||
4000 mm / Mit Stopfen befestigt / Europrofil-Zylinderschloss
417_401ZBP
|
|
||
4000 mm / Wurzelfest / Für Vorhängeschloss
417_401VB
|
|
||
4000 mm / Wurzelfest / Dreieckiger Verriegelungsmechanismus
417_401FB
|
|
||
4000 mm / Wurzelfest / Europrofil-Zylinderschloss
417_401ZB
|
|
||
4500 mm / Mit Stopfen befestigt / Für Vorhängeschloss
417_451VBP
|
|
||
4500 mm / Mit Stopfen befestigt / Dreieckiger Verriegelungsmechanismus
417_451FBP
|
|
||
4500 mm / Mit Stopfen befestigt / Europrofil-Zylinderschloss
417_451ZBP
|
|
||
4500 mm / Wurzelfest / Für Vorhängeschloss
417_451VB
|
|
||
4500 mm / Wurzelfest / Dreieckiger Verriegelungsmechanismus
417_451FB
|
|
||
4500 mm / Wurzelfest / Europrofil-Zylinderschloss
417_451ZB
|
|
Zwischensumme Produkt
